スケジュール

貸会議室1 貸会議室2 貸会議室3 貸会議室4 貸会議室5 貸会議室6

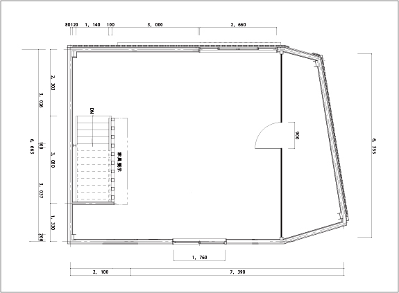
間取り

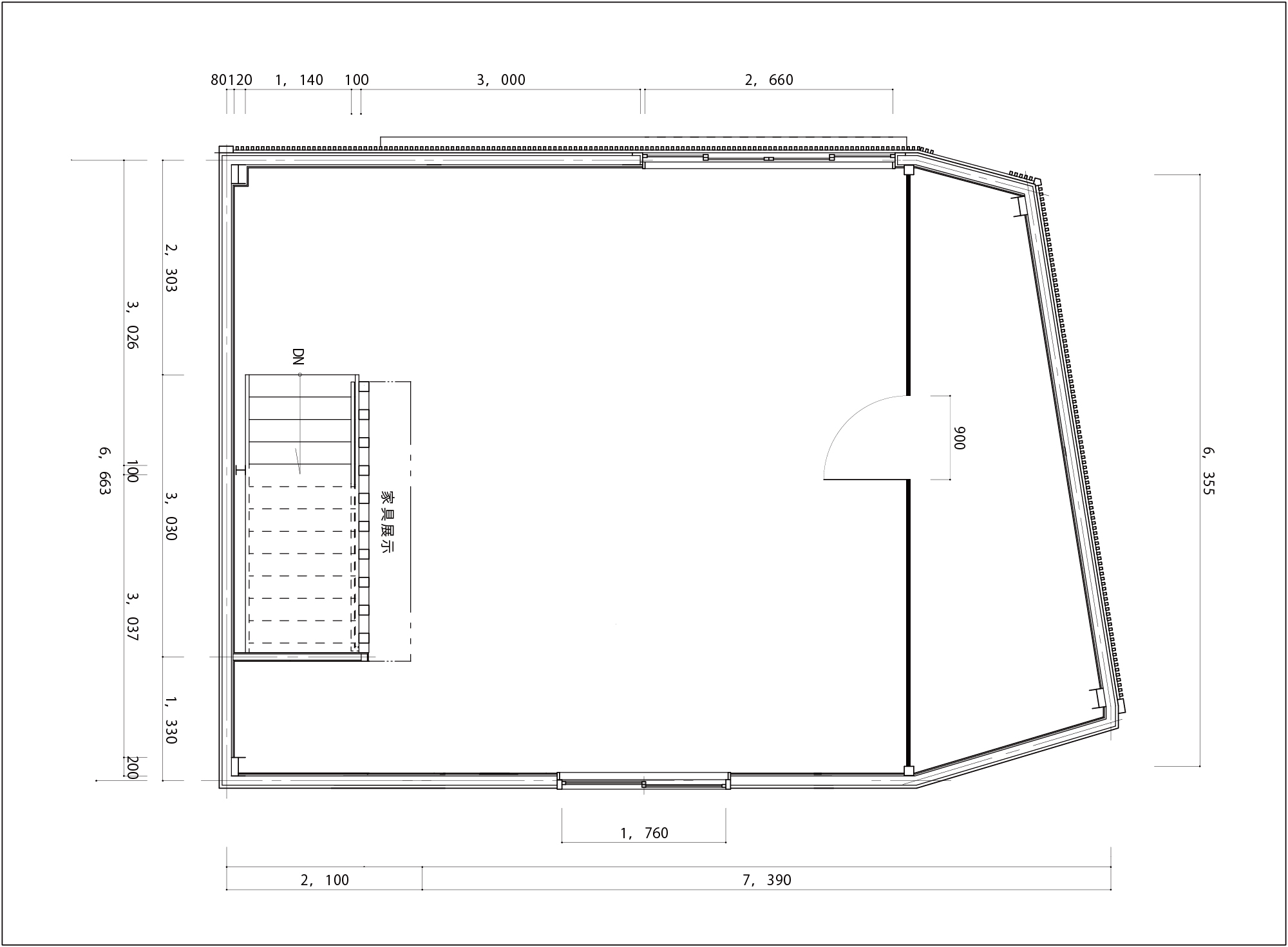
間取り

料金

  室名 定員 利用料金 延長料金 冷暖房料
      午前(9-12) 午後(13-17) 夜間ヤカン(18-21) ゼンニチ(9-17) 1時間 1時間
カフェ想創ソウソウ 2階 会議室 24 5,000 5,000 5,000 10,000 2,000 含むフク
ギャラリー     月曜日ゲツヨウビ曜日ドヨウビ   ¥30000- 6日間ニチカン